Delivered 100% vacant, this Tudor-style fourplex in the heart of Alhambra offers immediate flexibility and strong upside.
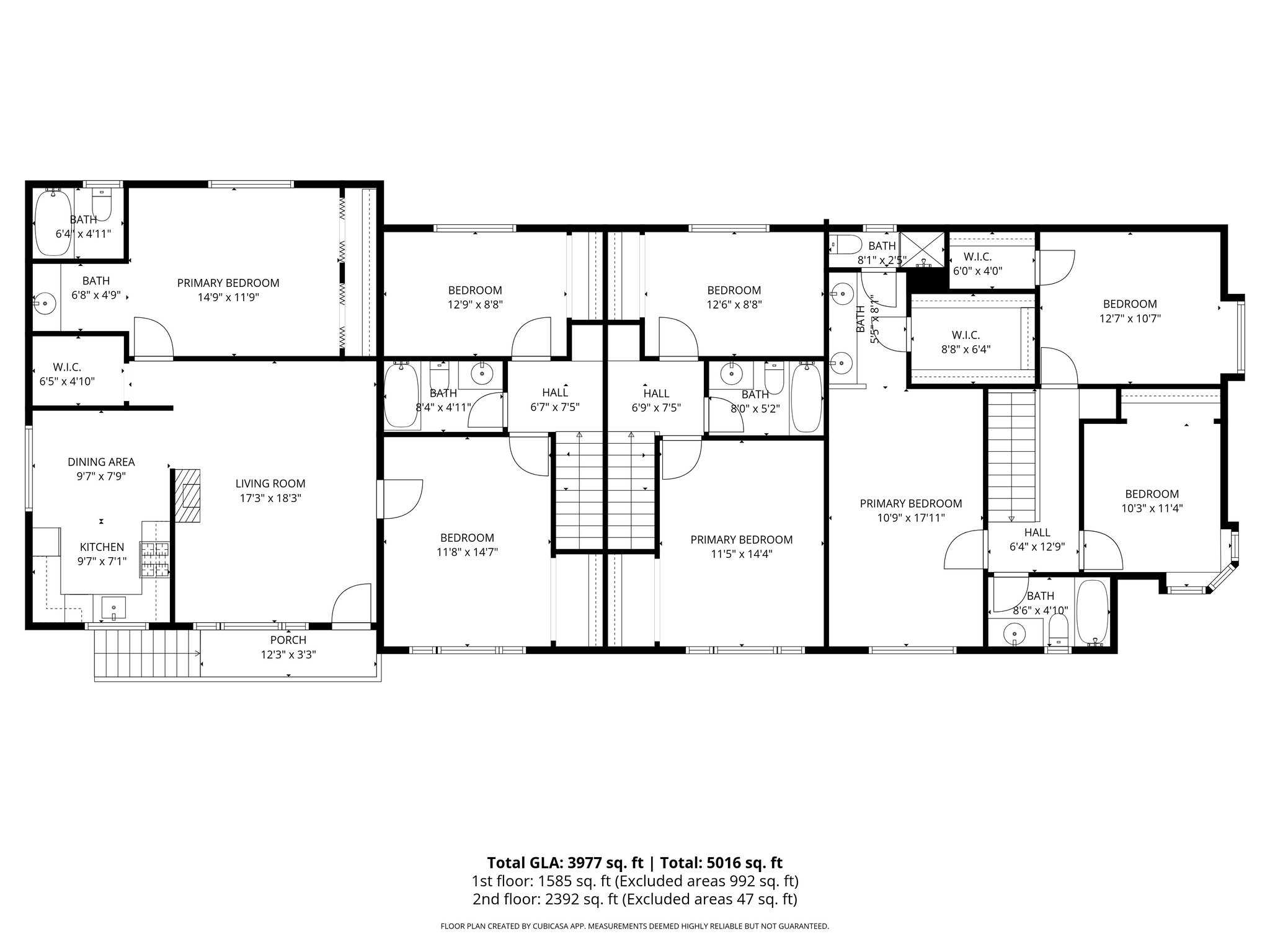
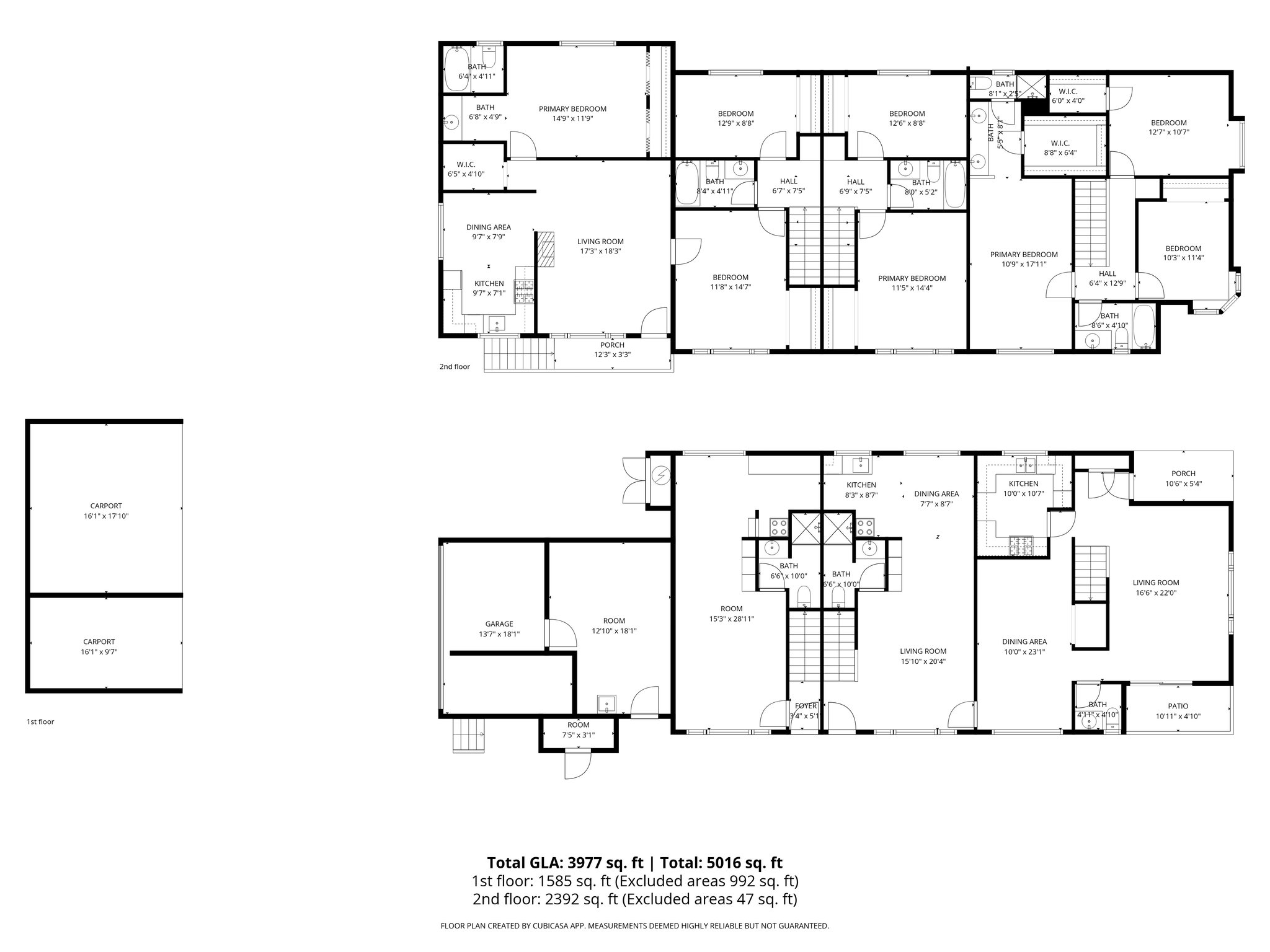
Situated on an approximately 7,600 sq ft lot, the property features a versatile unit mix: one 3-bed, 3-bath townhome-style unit, two 2-bed, 2-bath units, and one 1-bed, 1-bath unit, ideal for investors or owner-users. Each unit offers spacious layouts and abundant natural light, providing a strong foundation for updates and the potential to achieve market rents. Classic Tudor details, including steep gables and charming curb appeal, set the property apart from typical multifamily offerings. Four parking spaces are included in a carport behind a gated driveway. Centrally located along Atlantic Boulevard, just moments from Alhambra’s Main Street, with convenient access to dining, shopping, and major transportation corridors.
A compelling opportunity to renovate, reposition, or customize in a desirable San Gabriel Valley location.